En el vasto panorama de la automatización industrial, dos componentes esenciales se entrelazan para dar vida a los procesos y sistemas que impulsan la eficiencia y la productividad.
En nuestro artículo anterior, “¿Qué es un tablero eléctrico y cuáles son sus componentes?” exploramos a fondo el mundo del tablero eléctrico, un elemento fundamental en la distribución y gestión de la energía eléctrica.
Hoy hablaremos sobre el tablero de control, la parte vital que enlaza señales y comanda operaciones.
¿Qué es un tablero de control?
¿Qué es un tablero de control?
El tablero de control es un gabinete que se utiliza para el almacenamiento de componentes eléctricos y electrónicos vitales, como tarjetas de PLC, salidas, entradas analógicas, y diversos relés, entre otros, cuya función esrecibir y enviar señales de control, actuando como el núcleo de comunicación entre diversos elementos en un sistema o subsistema.

Todo esto interconectado cuidadosamente para garantizar un monitoreo y control efectivo del proceso.
Normativas y estándares para la eficiencia
Normativas y estándares para la eficiencia
La importancia de los tableros de control se refleja también en las normativas y estándares que rigen su diseño y funcionamiento. Por ejemplo, la NOM-001-SEDE Instalaciones Eléctricas (utilización) establece pautas específicas, como la distancia entre charolas o ductos eléctricos para evitar interferencias electromagnéticas y pérdida de señales.
Además, organismos como la International Electrotécnica Commission (IEC), a través de normativas como la IEC 61346, regulan los sistemas industriales y la instalación de equipos, asegurando la coherencia y eficiencia en el diseño de los tableros de control.
Otra normativa utilizada para los tableros de control es la ISA 5.1 Símbolos Instrumentación e Identificación, la cual se utiliza para transmitir de una forma más fácil y específica la información de los diagramas eléctricos y de instrumentación.
Clasificación
Clasificación
Los tableros de control se clasifican en diferentes tipos según su diseño y aplicación. Entre ellos se encuentran los compactos, ideales para espacios reducidos, los pequeños, utilizados en puntos de interconexión específicos, y los autosoportados, con estructura independiente y capacidad de movimiento.
Además, existen gabinetes de acero inoxidable para entornos corrosivos, modulares para una fácil expansión o reducción, y de tecnologías de la información y telecomunicaciones, diseñados para equipos específicos de red.
Cada tipo ofrece ventajas particulares, garantizando una gestión eficiente y adaptable en entornos industriales.




Componentes esenciales: la anatomía del tablero de control
Componentes esenciales: la anatomía del tablero de control
El correcto funcionamiento de un tablero de control radica en la integración armoniosa de sus componentes. El uso de materiales como el acero inoxidable en entornos exigentes como la industria alimentaria y farmacéutica garantizan la durabilidad y la higiene del sistema.
Desde las tapas laterales hasta las bornas de conexión, cada elemento desempeña un papel fundamental en el funcionamiento y seguridad del sistema:
- Tapas laterales y puerta posterior: estos elementos proporcionan acceso seguro al interior del tablero, protegiendo los componentes electrónicos de daños externos y asegurando la integridad del sistema.
- Base o zócalo: se estable para montar y sostener los componentes internos, asegurando su fijación adecuada y facilitando la instalación y el mantenimiento del sistema.
- Pletinas y rieles de montaje: elementos cruciales que proporcionan un soporte estructural para los componentes electrónicos, permitiendo su fijación segura y su disposición ordenada dentro del tablero.
- Componentes de alimentación y protección: estos incluyen interruptores, fusibles, contactores y dispositivos de protección contra sobrecargas, que garantizan un suministro de energía estable y protegen el sistema contra fallos eléctricos y daños potenciales.
- Interfaz HMI y dispositivos de control: la interfaz HMI (Interfaz Humano-Máquina) proporciona una plataforma intuitiva para monitorear y controlar el sistema.
- Dispositivos de comunicación y conectividad: permiten la comunicación y la interoperabilidad entre el tablero de control y otros sistemas o dispositivos externos.
- Elementos de monitorización y diagnóstico: estos incluyen sensores, indicadores y sistemas de diagnóstico que permiten monitorear el rendimiento y el estado del sistema en tiempo real, facilitando la detección temprana de problemas y la implementación de medidas correctivas.
- Estructura modular y escalable: permite su expansión y personalización según las necesidades específicas del proceso o la aplicación, proporcionando flexibilidad y adaptabilidad para abordar cambios en los requisitos del sistema

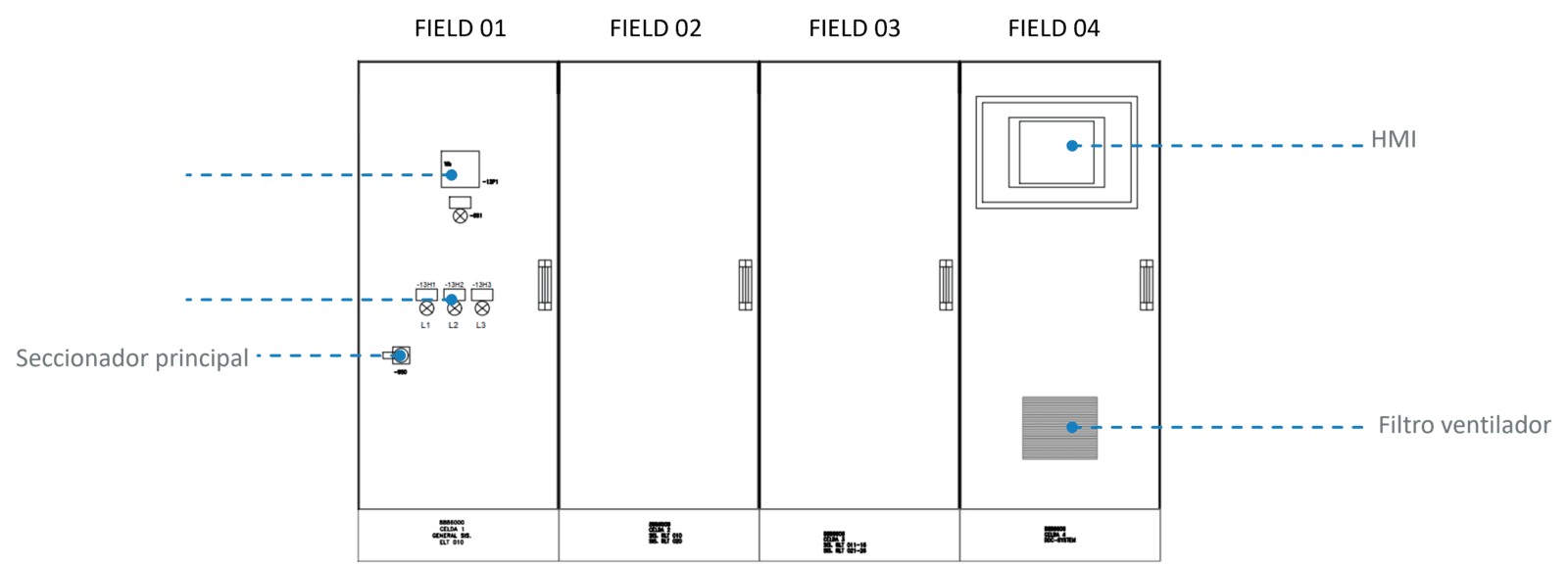
El esquemático del tablero de control representa una estructura organizada en celdas o campos, cada uno con una función específica.

En el campo uno se encuentra la parte de fuerza, responsable de suministrar la alimentación a todos los armarios, seguido por los campos dos y tres dedicados a la maniobra. La celda cuatro alberga la parte de control, donde se encuentra una interfaz HMI y otros elementos como filtro y ventilador.

Implementación exitosa de un tablero de control
Implementación exitosa de un tablero de control
Para una implementación exitosa de un tablero de control se requiere atención en la selección de materiales y la disposición de los componentes internos.
Nuestro equipo de KINENERGY participó en un proyecto de una manejadora de aire para un edificio comercial. El problema principal radicaba en la falta de coordinación entre las dos unidades de la manejadora, lo que resultaba en un funcionamiento ineficiente y desperdicio de energía.
La solución implicó en la implementación de un sistema de control centralizado que permitiera la supervisión y coordinación de ambas unidades desde un único tablero. Se diseñó e instaló un tablero de control avanzado que integraba sensores de temperatura, dispositivos de maniobra y sistemas de comunicación para ambas unidades.

Este nuevo sistema permitió monitorear y ajustar de manera precisa las condiciones ambientales en todo el edificio, optimizando el rendimiento energético y mejorando el confort de los ocupantes. Gracias a la solución proporcionada se logró una operación más eficiente y económica de la manejadora de aire, resolviendo así el problema inicial de falta de coordinación y maximizando la eficiencia energética del edificio comercial.
Innovación y adaptabilidad: abriendo nuevas posibilidades
Innovación y adaptabilidad: abriendo nuevas posibilidades
La innovación tecnológica y la adaptabilidad son aspectos clave en la evolución de los tableros de control, permitiendo la integración de nuevas funcionalidades y la mejora continua de su rendimiento y eficiencia.
Gracias a la automatización avanzada mediante sistemas como PLCs (Controladores Lógicos Programables) y SCADA (Supervisión, Control y Adquisición de Datos), así como la adopción de tecnologías de comunicación como Ethernet/IP y Modbus TCP/IP, se facilita una gestión más sofisticada y conectada de los procesos industriales.
La flexibilidad y escalabilidad de los diseños modulares permiten ajustarse a las necesidades cambiantes del entorno industrial, mientras que la incorporación de técnicas de inteligencia artificial y análisis de datos posibilita una monitorización predictiva del sistema, mejorando la detección temprana de fallos y la optimización del rendimiento operativo.
En conclusión, comprender la importancia y funcionamiento de los tableros de control es fundamental para su diseño y operación dentro de sistemas industriales. Su adecuada aplicación y cumplimiento de normativas garantizan la eficiencia, seguridad y calidad en los procesos industriales modernos.
¿Tienes alguna duda? Déjanos tus datos para ponernos en contacto. ¡Es un placer ayudarte!

Raúl Hernández
Ingeniero MEP Sistemas Especiales
Raúl cuenta con más de 6 años de experiencia, ha participado en más de 6 proyectos de ingeniería implementados en México; destaca su participación en el proyecto “A41 Bodyshop para el modelo Q5 Audi M/G-2M1” en la ciudad de Puebla. Cuenta con el título de Ingeniería en Control y Automatización por la Escuela Superior de Ingeniería Mecánica y Eléctrica del Instituto Politécnico Nacional. Raúl disfruta la lectura, especialmente en tecnologías de la información.
Raúl cuenta con más de 6 años de experiencia, ha participado en más de 6 proyectos de ingeniería implementados en México; destaca su participación en el proyecto “A41 Bodyshop para el modelo Q5 Audi M/G-2M1” en la ciudad de Puebla. Cuenta con el título de Ingeniería en Control y Automatización por la Escuela Superior de Ingeniería Mecánica y Eléctrica del Instituto Politécnico Nacional. Raúl disfruta la lectura, especialmente en tecnologías de la información.
